Industriel À vendre

Ath, 7800
245 000 €
À vendre
Référence : 7546593

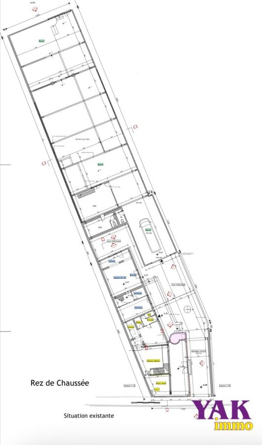
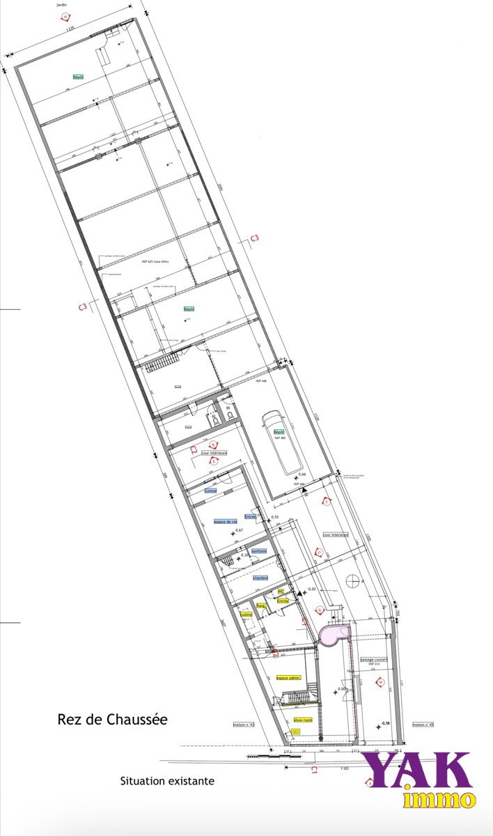
Ensemble immobilier avec entrepôt , local commercial et bureau

Le bureau YAKimmo vous propose à Lessines;

Un ensemble immobilier à rénover, composé comme suit :

– Le rez-de-chaussée offre un espace commercial de 115 m², un bureau de 77 m² et un grand entrepot de 500 m².
– Au 1er et deuxième étage en duplex, une surface de bureaux / conciergerie de 73 m².
– A l’extérieur: une cour et un jardin.

LES + :
– Le matériel pour la rénovation de la toiture de l’entrepot et les meubles de cuisine sont mis à disposition.
– Murs insonorisés et nouvelle dalle dans l’entrepot.
– Idéal pour une crèche, centre médical, etc…
– Entrée carrosable de +-4 m de largeur sur 3m de HSP

Prix : 245.000,-€ (sous réserve de l’acceptation des propriétaires).
Vente sous régime TVA

Pour toutes informations ou une évaluation offerte de votre bien 02 355 17 51. https://www.yakimmo.be/vendre/#estimation

Rejoignez nous sur https://www.facebook.com/yakimmorealestate/

Le bureau YAKimmo, le bureau idéal pour vendre, acheter, louer ou gérer vos biens !

Annonce à titre indicatif et non contractuel, sous réserve d’erreurs et omissions, de changement de prix, de retrait ou de vente préalable. Les superficies et dimensions mentionnés sont donnés à titre indicatif.

Données générales

  • Prix 245 000 €
  • Référence 7321650
  • Ville Ath
  • Catégorie Industriel
  • Sous-catégorie Bureaux & entrepôts
  • Status de la transaction À vendre
  • Etat du batiment À rénover
  • Revenu cadastral 3 287 €

Configurations

  • Type de cuisin 1
  • Nombre de toilettes 2
  • Parking Oui
  • Cave Oui

Données énergétiques

  • Conformité éléctricité non

Contactez l'agence