Industriel À vendre

Lessines, 7860
215 000 €
À vendre
Référence : 7606706

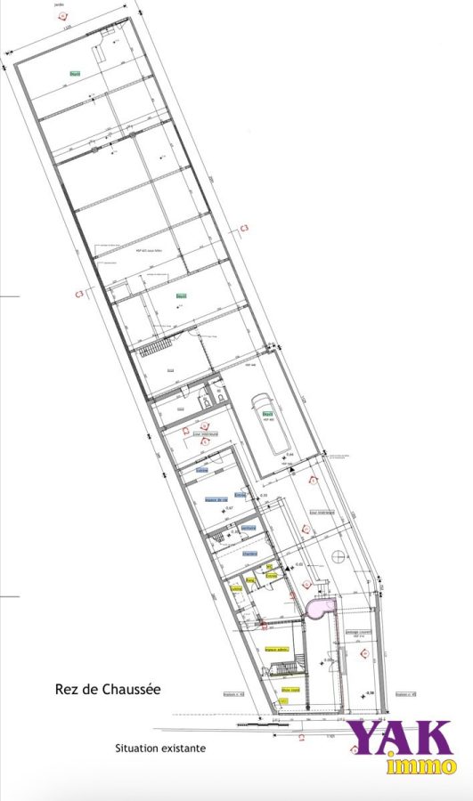
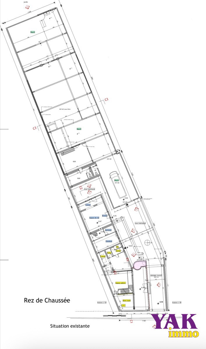
Ensemble immobilier avec entrepôt, local commercial et bureau

Le bureau YAKimmo vous propose à Lessines;

Un ensemble immobilier à rénover, composé comme suit :

– Le rez-de-chaussée offre un espace commercial de 115 m², un bureau de 77 m² et un grand entrepot de 500 m².
– Au 1er et deuxième étage en duplex, une surface de bureaux / conciergerie de 73 m².
– A l’extérieur: une cour et un jardin.

LES + :
– Murs insonorisés et nouvelle dalle dans l’entrepot.
– Idéal pour une crèche, centre médical, etc…
– Entrée carrosable de +-4 m de largeur sur 3m de HSP

Prix : 215.000,-€
Sous régime TVA

Pour toutes informations ou une évaluation gratuite de votre bien 02 355 17 51 https://www.yakimmo.be/vendre/#estimation

Rejoignez nous sur https://www.facebook.com/yakimmorealestate/

Vous êtes à la recherche ? N’hésitez pas à nous laisser vos critères sur notre site via http://www.yakimmo.be/votre-recherche

Le bureau YAKimmo, le bureau idéale pour vendre, acheter, louer ou gérer vos biens !!!

Annonce à titre indicatif et non contractuel, sous réserve d’erreurs et omissions, de changement de prix, de retrait ou de vente préalable. Les superficies et dimensions mentionnées sont données à titre indicatif.

Données générales

  • Prix 215 000 €
  • Référence 7593639
  • Ville Lessines
  • Catégorie Industriel
  • Sous-catégorie Bureaux & entrepôts
  • Status de la transaction À vendre
  • Etat du batiment À rénover
  • Revenu cadastral 3 287 €

Configurations

  • Type de cuisin 1
  • Nombre de toilettes 2
  • Parking Oui
  • Cave Oui

Données énergétiques

  • Conformité éléctricité non

Contactez l'agence