
NOUS SOMMES A VOTRE ECOUTE
02 355 17 51
erika@yakimmo.be
RENDEZ-NOUS VISITE
81 rue de la Déportation
1480 Tubize
1480 Tubize
© YAK immo 2020. TVA : BE 0779 454 188. Agrément IPI n° : 100817. Conditions générales. Politique de confidentialité.





















Le bureau YAKimmo vous propose à Lessines;
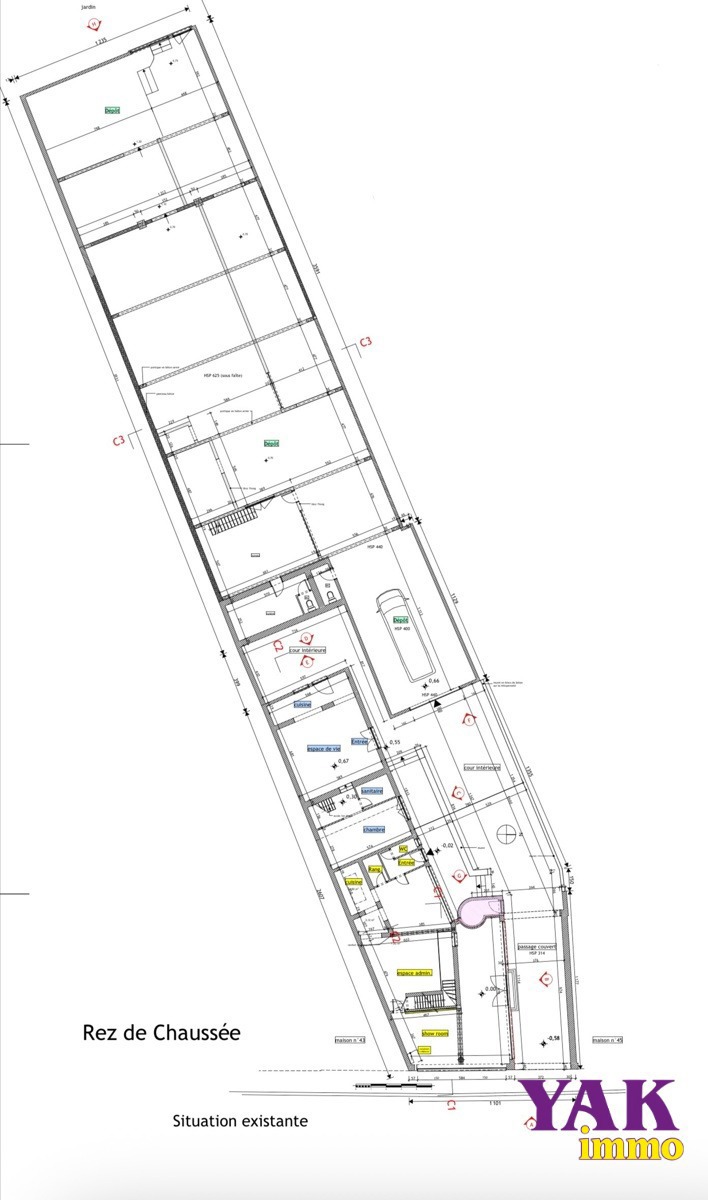
Un ensemble immobilier à rénover, composé comme suit :
– Le rez-de-chaussée offre un espace commercial de 115 m², un bureau de 77 m² et un grand entrepôt de 500 m².
– Au 1er et deuxième étage en duplex, une surface de bureaux / conciergerie de 73 m².
– A l’extérieur: une cour et un jardin.
LES + :
– Le matériel pour la rénovation de la toiture de l’entrepot et les meubles de cuisine sont mis à disposition.
– Murs insonorisés et nouvelle dalle dans l’entrepot.
– Idéal pour une crèche, centre médical, etc…
– Entrée carrosable de +-4 m de largeur sur 3m de HSP
Prix : 245.000,-€ (sous réserve de l’acceptation des propriétaires).
Vente sous régime TVA
Pour toutes informations ou une évaluation offerte de votre bien 02 355 17 51. https://www.yakimmo.be/vendre/#estimation
Rejoignez nous sur https://www.facebook.com/yakimmorealestate/
Le bureau YAKimmo, le bureau idéal pour vendre, acheter, louer ou gérer vos biens !
Annonce à titre indicatif et non contractuel, sous réserve d’erreurs et omissions, de changement de prix, de retrait ou de vente préalable. Les superficies et dimensions mentionnés sont donnés à titre indicatif.

© YAK immo 2020. TVA : BE 0779 454 188. Agrément IPI n° : 100817. Conditions générales. Politique de confidentialité.
Bureaux & entrepôts à vendre à Lessines 