Industrieel Te koop
- 765 m²
- 1500 m²





















Ensemble immobilier avec local commercial, entrepôt et bureau
Het kantoor YAKimmo biedt u in Lessines:
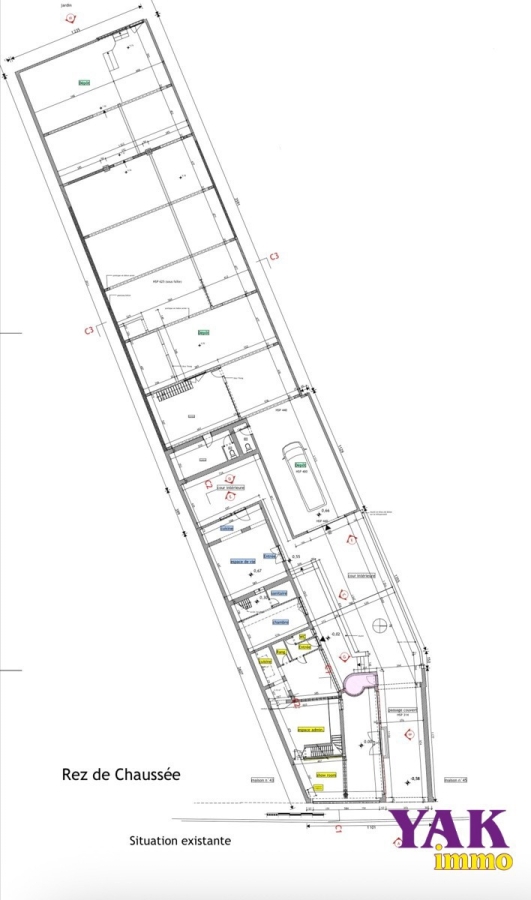
Een te renoveren vastgoedcomplex, samengesteld als volgt:
– De begane grond biedt een commerciële ruimte van 115 m², een kantoor van 77 m² en een groot magazijn van 500 m².
– Op de 1e en 2e verdieping in duplex, een kantoor-/conciërgerie van 73 m².
– Buiten: een binnenplaats en een tuin.
PLUSPUNTEN:
– Het materiaal voor de renovatie van het dak van het magazijn en het keukenmeubilair worden ter beschikking gesteld.
– Geluiddichte muren en nieuwe vloer in het magazijn.
– Ideaal voor een kinderdagverblijf, medisch centrum, enz.
– Oprit van +-4 m breed en 3 m hoog
Prijs: 245.000,-€ (onder voorbehoud van aanvaarding door de eigenaars).
Voor alle informatie of een gratis taxatie van uw eigendom: 02 355 17 51. https://www.yakimmo.be/vendre/#estimation
Volg ons op https://www.facebook.com/yakimmorealestate/
YAKimmo, het ideale makelaarskantoor voor de verkoop, aankoop, verhuur of beheer van uw onroerend goed!
Advertentie ter informatie en niet bindend, onder voorbehoud van fouten en weglatingen, prijswijzigingen, intrekking of eerdere verkoop. De vermelde oppervlakten en afmetingen zijn indicatief.
Algemene gegevens
- Prijs 245 000 €
- Referentie 7316970
- Stad Lessines
- Categorie Industrieel
- Transactiestatus Te koop
- Gebouwtoestand Te renoveren
- Kadaster 3 287 €
Configuraties
- Parkeerplaats Ja
- Kelder Ja
- Totale oppervlakte 765 m²
- Terreinoppervlakte 1.500 m²
Energiegegevens
Neem contact op met het agentschap
- 81 rue de la Déportation 1480 Tubize
- +32 (0)2 355 17 51
- erika@yakimmo.be


