Maison À vendre
- 3 ch.
- 1 sdb.
- 407 m²
- 970 m²























GROS POTENTIEL Maison de commerce + Atelier
Le bureau YAKimmo vous propose en exclusivité :
Une belle et vaste maison dans le centre historique d’Enghien. Elle vous séduira par son cachet et ses volumes généreux.
Le bien se compose comme suit:
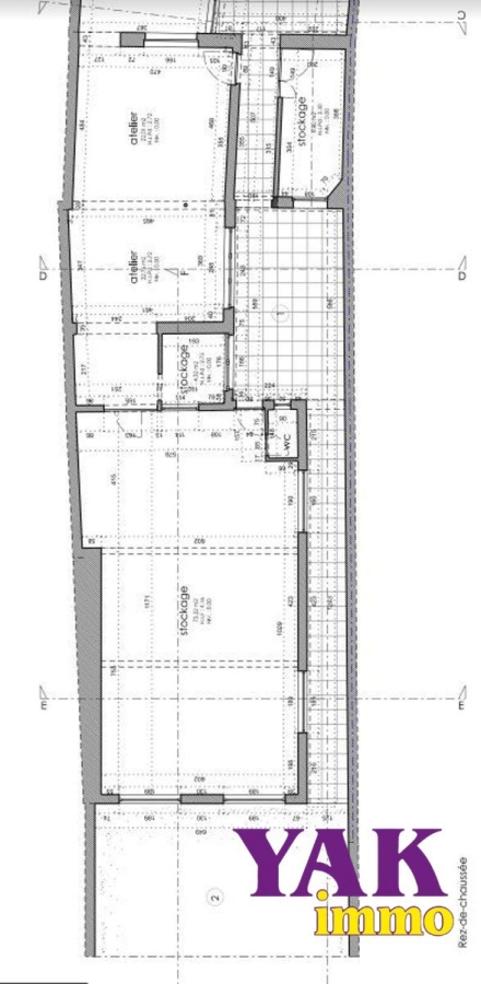
– une maison de commerce et habitation de 240 m² plancher
– un atelier de 166 m²
– deux parcelles de parc et jardin
Sous réserve de l’obtention d’un permis d’urbanisme, l’ensemble pourrait être réhabilité en une multitude de projets immobiliers. Travaux de rénovation à prévoir.
Prix : 200.000€ (sous réserve d’acceptation du propriétaire). Ne manquez pas cette opportunité unique !
Pour toutes informations ou une évaluation offerte de votre bien 02 355 17 51. https://www.yakimmo.be/vendre/#estimation
Rejoignez nous sur https://www.facebook.com/yakimmorealestate/
Le bureau YAKimmo, le bureau idéal pour vendre, acheter, louer ou gérer vos biens !
Annonce à titre indicatif en non contractuel. ATTENTION certaines photos ont pu être générées par une IA.
Algemene gegevens
- Prijs 200 000 €
- Referentie 6370941
- Stad Enghien
- Categorie Maison
- Transactiestatus Vendu
- Gebouwtoestand À rénover
- Bouwjaar 1721
- Kadaster 1 792 €
Configuraties
- Slaapkamers 3
- Aantal badkamers 1
- Tuin Ja
- Kelder Ja
- Totale oppervlakte 407 m²
- Terreinoppervlakte 970 m²
- Oppervlakte tuin 480 m²
- Oppervlakte keuken 36 m²
- Oppervlakte slaapkamer 1 19 m²
- Oppervlakte slaapkamer 2 18 m²
- Oppervlakte slaapkamer 3 13 m²
Energiegegevens
- EPC Label
- EPC Code 20210801003457
- EPC Waarde 385 kWh/m²/jaar
- EPC Totaal 110554 kWh/jaar
- Gasuitstoot 24 Kg/CO2/jaar
Neem contact op met het agentschap

- 81 rue de la Déportation 1480 Tubize
- +32 (0)2 355 17 51
- erika@yakimmo.be