Maison À vendre

Enghien, 7850
200 000 €
Vendu
Référence : 6507410

GROS POTENTIEL Maison de commerce + Atelier

Le bureau YAKimmo vous propose en exclusivité :

Une belle et vaste maison dans le centre historique d’Enghien. Elle vous séduira par son cachet et ses volumes généreux.

Le bien se compose comme suit:

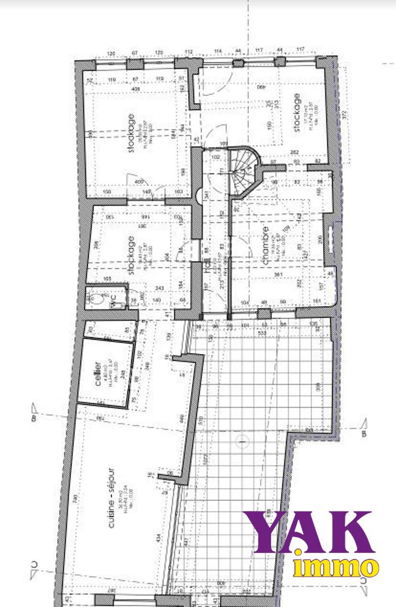
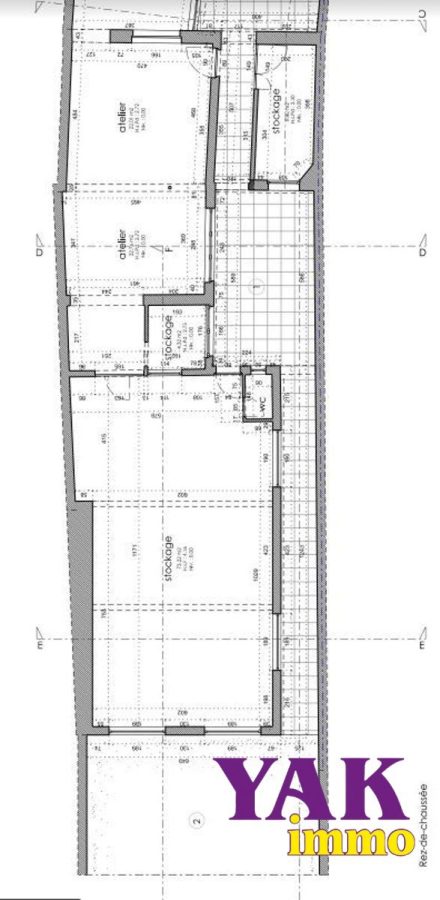
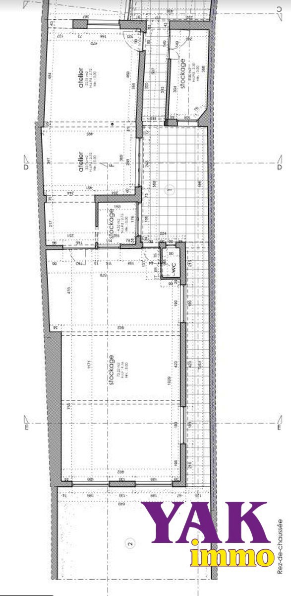
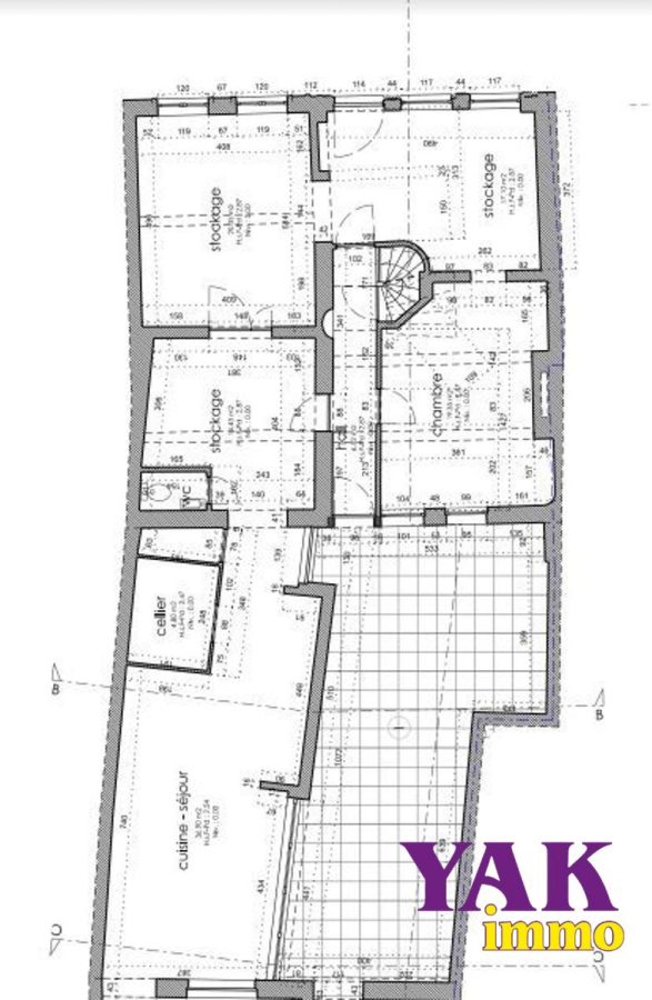
– une maison de commerce et habitation de 240 m² plancher
– un atelier de 166 m²
– deux parcelles de parc et jardin

Sous réserve de l’obtention d’un permis d’urbanisme, l’ensemble pourrait être réhabilité en une multitude de projets immobiliers. Travaux de rénovation à prévoir.

Prix : 200.000€ (sous réserve d’acceptation du propriétaire). Ne manquez pas cette opportunité unique !

Pour toutes informations ou une évaluation offerte de votre bien 02 355 17 51. https://www.yakimmo.be/vendre/#estimation

Rejoignez nous sur https://www.facebook.com/yakimmorealestate/

Le bureau YAKimmo, le bureau idéal pour vendre, acheter, louer ou gérer vos biens !

Annonce à titre indicatif en non contractuel. ATTENTION certaines photos ont pu être générées par une IA.

Données générales

  • Prix 200 000 €
  • Référence 6370941
  • Ville Enghien
  • Catégorie Maison
  • Sous-catégorie Immeuble mixte
  • Status de la transaction Vendu
  • Etat du batiment À rénover
  • Date de construction 1721
  • Revenu cadastral 1 792 €

Configurations

  • Nombre de chambres 3
  • Nombre de salles de bains 1
  • Nombre de salles de douches 1
  • Nombre de toilettes 2
  • Nombre de terrasses 3
  • Jardin Oui
  • Cave Oui

Données énergétiques

  • Classe énergétique PEB
  • PEB No 20210801003457
  • E spec 385 kWh/m²/an
  • E totale 110554 kWh/an
  • Emission de CO2 24 Kg/CO2/an
  • Conformité éléctricité non

Contactez l'agence